152 Woodbridge LaneBeecher, IL 60401




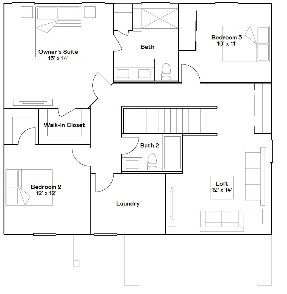
HOMESITE 37 Experience the Meadowlark model, a masterfully designed two-story home combining style and convenience. With three bedrooms, two bathrooms, and a powder room, this home offers the perfect space for modern living. The first floor features a bright, open-concept layout, with a spacious family room, accessible dining area, and an impressive kitchen. The kitchen includes a large island with beautiful countertops, ample cabinetry, stainless steel appliances, and a built-in pantry for added storage. Situated on the second floor, the owner's suite provides a peaceful haven, complete with a walk-in closet and a spa-inspired bathroom with double sinks, a deluxe shower, and high-end finishes. Two additional bedrooms share a full bathroom, and the practicality of a second-floor laundry room enhances the home's livability. The versatile loft and flex space offer endless possibilities for a home office, entertainment area, or extra living space to suit your needs. Throughout the home, thoughtful details like luxury vinyl plank flooring, quartz countertops, LED lighting, and decorative railings enhance both the aesthetic and functionality of every room. Exterior will be Bone color siding. (pic for reference ONLY). *Photos are not this actual home* "Hunter's Chase is a new community of single-family homes for sale in Beecher, IL, offering residents a peaceful lifestyle surrounded by open green spaces and scenic ponds. Enjoy outdoor activities and tranquil views right within your neighborhood. Families will appreciate the close proximity to local schools, making morning routines easier and school events more accessible. For those who love the outdoors, nearby nature preserves provide endless opportunities for hiking, exploring, and enjoying the natural beauty of the area. Convenience is key at Hunter's Chase, with easy access to downtown Beecher's shopping, dining, and community amenities just minutes away. Experience the perfect blend of peaceful living and everyday convenience at Hunter's Chase-a community designed to grow with you and your family.
| 5 days ago | Listing updated with changes from the MLS® | |
| 5 days ago | Price changed to $314,590 | |
| 5 days ago | Status changed to Active | |
| a month ago | Listing first seen on site |
Based on information submitted to the MLS GRID as of 2025-11-10 12:29 AM UTC. All data is obtained from various sources and may not have been verified by broker or MLS GRID. Supplied Open House Information is subject to change without notice. All information should be independently reviewed and verified for accuracy. Properties may or may not be listed by the office/agent presenting the information.
Last checked: 2025-11-10 12:29 AM UTC
MRED DMCA Copyright Information Copyright © 2025 Midwest Real Estate Data LLC. All rights reserved.
Did you know? You can invite friends and family to your search. They can join your search, rate and discuss listings with you.