4613 Madison AvenueBrookfield, IL 60513




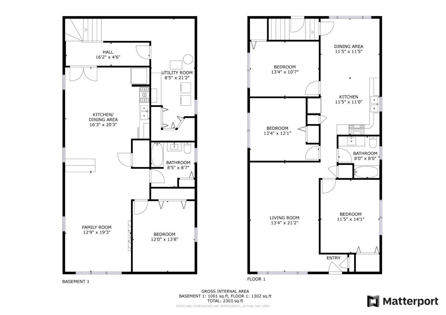
WOW!! TAKE A 3D TOUR - CLICK ON THE 3D BUTTON AND ENJOY!! OMG! Stunning Brookfield Home! LOCATION, LOCATION!! This beautifully updated Brick, 4 Bedroom home offers 2 levels of living with 3 huge bedrooms and 1 beautiful bathroom on the first floor! 1 Bed, second kitchen, and Full Bath in Finished Basement! Tons of Natural Light and Hardwood floors throughout the first floor! Both kitchens feature newer appliances! The first floor includes large living room. Primary Bedroom on the first floor! 2-car Detached garage with newer roof in 2018. Furnace 2018. Huge Backyard & Deck for Entertaining! Located on a quiet dead-end street close to restaurants, shopping, golf course, parks, schools, and highway! This home has it all! Don't miss out! HURRY!!
| 4 days ago | Listing updated with changes from the MLS® | |
| 4 days ago | Listing first seen on site |
Based on information submitted to the MLS GRID as of 2025-10-28 08:59 AM UTC. All data is obtained from various sources and may not have been verified by broker or MLS GRID. Supplied Open House Information is subject to change without notice. All information should be independently reviewed and verified for accuracy. Properties may or may not be listed by the office/agent presenting the information.
Last checked: 2025-10-28 08:59 AM UTC
MRED DMCA Copyright Information Copyright © 2025 Midwest Real Estate Data LLC. All rights reserved.
Did you know? You can invite friends and family to your search. They can join your search, rate and discuss listings with you.